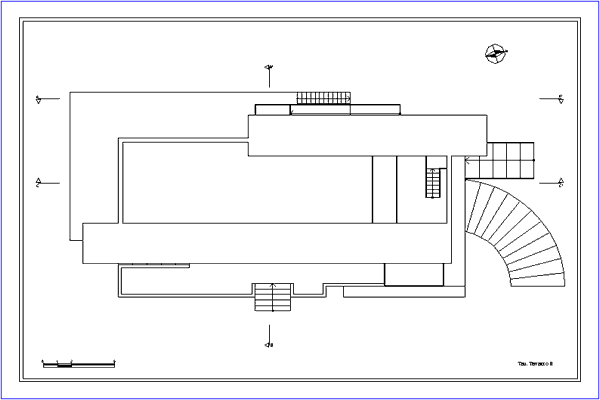
Vista Aerea Piante     Prospetti      Sezioni     Render     Piano Scantinato 1° Piano 2° Piano Terrazzo