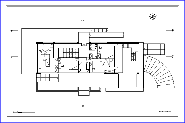
2° Piano Piante     Prospetti      Sezioni     Render     Piano Scantinato 1° Piano Terrazzo Vista Aerea