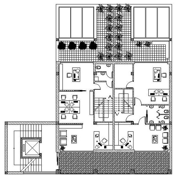
Pianta Piano Uffici