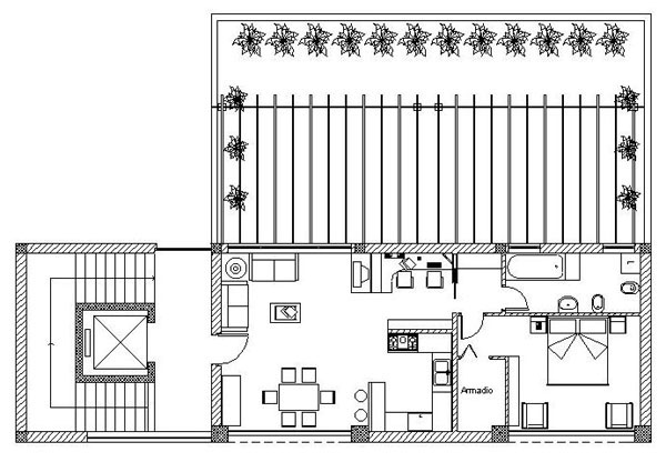
Pianta Piano Residenziale Simplex (Livello 5)