Restituzione vettoriale

Clicca_per_Ingrandire

Piante

Clicca_per_Ingrandire

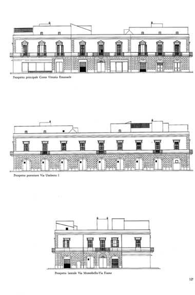
Prospetti

Clicca_per_Ingrandire

Piano terra

Clicca_per_Ingrandire

Via Umberto I

Clicca_per_Ingrandire

Piano primo

Clicca_per_Ingrandire

Corso Vittorio Emanuele

Clicca_per_Ingrandire

Via Fiume