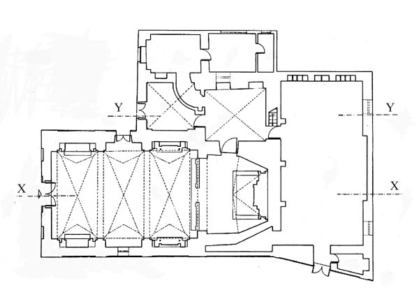
PIANTA.  QUOTA: m.+1.00