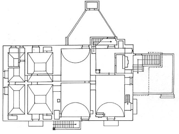
PIANTA DEL PRIMO PIANO



foto