Esame di Composizione Architettonica:CASA D'ANGOLO

Vista Prospettica Vista Prospettica
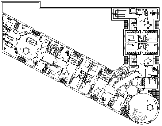
Vista Assonometrica Piano Tipo